Tel: 35269635 | Cel: 1535459555 | Whatsapp: +54 9 1135459555 | Desde el exterior: (0054911) 35459555
Nahuel Huapi & Burela. Villa Urquiza
Valor de Alquiler:
U$S – Dólares
4000
Valor Mensual:
U$S – Dólares
4000
Ubicación:
Nahuel Huapi & Burela. Villa Urquiza.
Disponibilidad:
ALQUILER VIVIENDA / COMERCIAL.
Descripción:
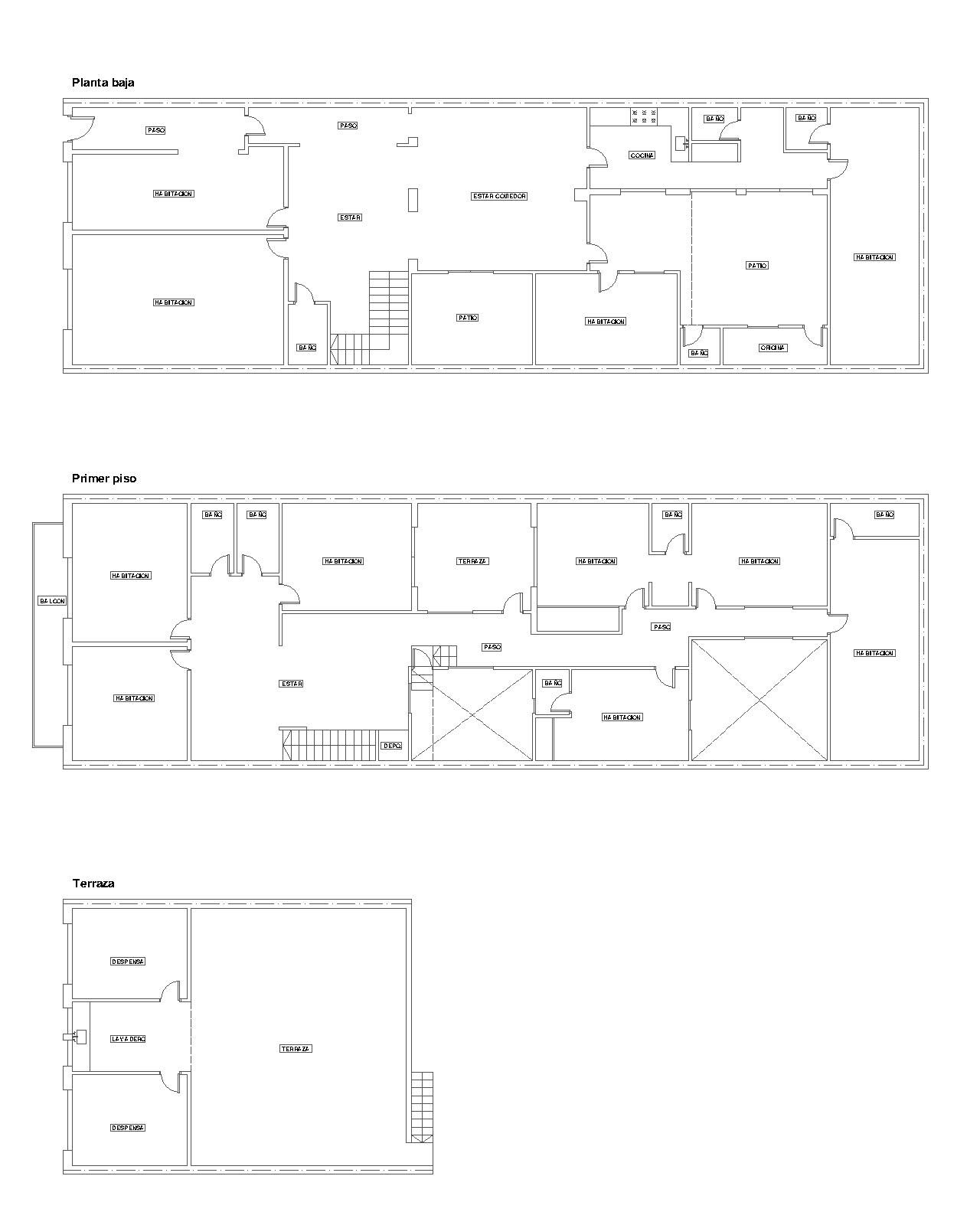
Importante Propiedad construida en un lote de 9 m de frente x 28 m de fondo. Superficie total 252 m2. Superficie cubierta estimada 493 m2. Al frente. Luz natural. El inmueble se entrega en excelente estado, recién pintado. Muy buenos medios de transporte, acceso a provincia, 7 líneas de colectivos, Subte B: Estación Juan Manuel de Rosas. Urquiza, Tren Mitre/José León Suárez: Estación Villa Urquiza. Apto varios destinos,:vivienda, oficinas, productoras, depósitos.Apto varios destinos: vivienda, oficinas, productoras, depósitos. No se aceptan modificaciones edilicias. La propiedad no cumple con las normativas aplicables a establecimientos de salud.
Comodidades:
El establecimiento se desarrolla en dos plantas con terraza. Planta baja con hall de entrada, comedor/ estar con aire acondicionado frio, amplia cocina, 4 habitaciones: 2 habitaciones al frente con baño, 1 habitación en la zona de pasillo con baño individual, 1 habitación al fondo con baño individual, 1 oficina. Patio. Primer piso con comedor estar con aire acondicionado frio/calor, 7 habitaciones: 2 habitaciones al frente con balcón, 2 baños, 1 habitación con baño compartido . Patio. 2 habitaciones con baño comparido. 1 habitación al fondo con baño. 1 habitaciòn con baño. Todas las habitaciones tienen ventanas. Terraza: 1 habitación y 1 depósito. Al primer piso y a la terraza se sube por escaleras. No hay ascensor.
Servicios:
Servicios:
Individuales. A cargo del inquilino, luz, gas, aysa, ABL/ impuesto inmobiliario.
Cocina:
Equipada con cocina industrial, campana, pisos de porcelanto, revestimientos de cerámicos.
Baño:
9 baños, 8 con ducha. Revestimientos de cerámicos.
Requisitos:
Se solicita comprobación de ingresos, sistema de fianzas, garante propietario, seguros contratodo riesgo. Depósito en garantia U$D 8000. Honorarios profesionales.





































